| Floor | NIA sqft | NIA sqm |
|---|---|---|
| Ground | 4,504 sqft | 418 sqm |
| First | 22,209 sqft | 2,603 sqm |
| Second | 25,046 sqft | 2,327 sqm |
| Third | 24,651 sqft | 2,290 sqm |
| Fourth | 25,051 sqft | 2,327 sqm |
| Fifth | 24,719 sqft | 2,296 sqm |
| Sixth | 23,711 sqft | 2,203 sqm |
| Seventh | 23,319 sqft | 2,166 sqm |
| Eighth | 12,047 sqft | 1,119 sqm |
| Ninth | - | - |
Availability.
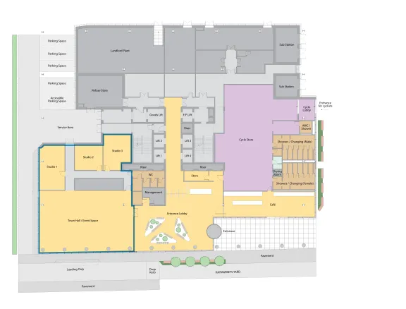
Ground Floor.
| Floor | NIA SQFT | NIA SQM |
|---|---|---|
| Ground | 4,504 | 418 |
| First | 22,209 | 2,063 |
| Second | 25,046 | 2,327 |
| Third | 24,651 | 2,290 |
| Fourth | 25,051 | 2,327 |
| Fifth | 24,719 | 2,296 |
| Sixth | 23,711 | 2,203 |
| Seventh | 23,319 | 2,166 |
| Eighth | 12,047 | 1,119 |
| TOTAL | 185,257 | 17,209 |
First Floor.
| Floor | NIA SQFT | NIA SQM |
|---|---|---|
| Ground | 4,504 | 418 |
| First | 22,209 | 2,063 |
| Second | 25,046 | 2,327 |
| Third | 24,651 | 2,290 |
| Fourth | 25,051 | 2,327 |
| Fifth | 24,719 | 2,296 |
| Sixth | 23,711 | 2,203 |
| Seventh | 23,319 | 2,166 |
| Eighth | 12,047 | 1,119 |
| TOTAL | 185,257 | 17,209 |
Second Floor.
| Floor | NIA SQFT | NIA SQM |
|---|---|---|
| Ground | 4,504 | 418 |
| First | 22,209 | 2,063 |
| Second | 25,046 | 2,327 |
| Third | 24,651 | 2,290 |
| Fourth | 25,051 | 2,327 |
| Fifth | 24,719 | 2,296 |
| Sixth | 23,711 | 2,203 |
| Seventh | 23,319 | 2,166 |
| Eighth | 12,047 | 1,119 |
| TOTAL | 185,257 | 17,209 |
Third Floor.
| Floor | NIA SQFT | NIA SQM |
|---|---|---|
| Ground | 4,504 | 418 |
| First | 22,209 | 2,063 |
| Second | 25,046 | 2,327 |
| Third | 24,651 | 2,290 |
| Fourth | 25,051 | 2,327 |
| Fifth | 24,719 | 2,296 |
| Sixth | 23,711 | 2,203 |
| Seventh | 23,319 | 2,166 |
| Eighth | 12,047 | 1,119 |
| TOTAL | 185,257 | 17,209 |
Fourth Floor.
| Floor | NIA SQFT | NIA SQM |
|---|---|---|
| Ground | 4,504 | 418 |
| First | 22,209 | 2,063 |
| Second | 25,046 | 2,327 |
| Third | 24,651 | 2,290 |
| Fourth | 25,051 | 2,327 |
| Fifth | 24,719 | 2,296 |
| Sixth | 23,711 | 2,203 |
| Seventh | 23,319 | 2,166 |
| Eighth | 12,047 | 1,119 |
| TOTAL | 185,257 | 17,209 |
Fifth Floor.
| Floor | NIA SQFT | NIA SQM |
|---|---|---|
| Ground | 4,504 | 418 |
| First | 22,209 | 2,063 |
| Second | 25,046 | 2,327 |
| Third | 24,651 | 2,290 |
| Fourth | 25,051 | 2,327 |
| Fifth | 24,719 | 2,296 |
| Sixth | 23,711 | 2,203 |
| Seventh | 23,319 | 2,166 |
| Eighth | 12,047 | 1,119 |
| TOTAL | 185,257 | 17,209 |
Sixth Floor.
| Floor | NIA SQFT | NIA SQM |
|---|---|---|
| Ground | 4,504 | 418 |
| First | 22,209 | 2,063 |
| Second | 25,046 | 2,327 |
| Third | 24,651 | 2,290 |
| Fourth | 25,051 | 2,327 |
| Fifth | 24,719 | 2,296 |
| Sixth | 23,711 | 2,203 |
| Seventh | 23,319 | 2,166 |
| Eighth | 12,047 | 1,119 |
| TOTAL | 185,257 | 17,209 |
Seventh Floor.
| Floor | NIA SQFT | NIA SQM |
|---|---|---|
| Ground | 4,504 | 418 |
| First | 22,209 | 2,063 |
| Second | 25,046 | 2,327 |
| Third | 24,651 | 2,290 |
| Fourth | 25,051 | 2,327 |
| Fifth | 24,719 | 2,296 |
| Sixth | 23,711 | 2,203 |
| Seventh | 23,319 | 2,166 |
| Eighth | 12,047 | 1,119 |
| TOTAL | 185,257 | 17,209 |
Eighth Floor.
| Floor | NIA SQFT | NIA SQM |
|---|---|---|
| Ground | 4,504 | 418 |
| First | 22,209 | 2,063 |
| Second | 25,046 | 2,327 |
| Third | 24,651 | 2,290 |
| Fourth | 25,051 | 2,327 |
| Fifth | 24,719 | 2,296 |
| Sixth | 23,711 | 2,203 |
| Seventh | 23,319 | 2,166 |
| Eighth | 12,047 | 1,119 |
| TOTAL | 185,257 | 17,209 |
Ninth Floor.
| Floor | NIA SQFT | NIA SQM |
|---|---|---|
| Ground | 4,504 | 418 |
| First | 22,209 | 2,063 |
| Second | 25,046 | 2,327 |
| Third | 24,651 | 2,290 |
| Fourth | 25,051 | 2,327 |
| Fifth | 24,719 | 2,296 |
| Sixth | 23,711 | 2,203 |
| Seventh | 23,319 | 2,166 |
| Eighth | 12,047 | 1,119 |
| TOTAL | 185,257 | 17,209 |
Building Specifications
Explore NEW YARDS’ extensive features and future-proofed design.